Nous utilisons les cookies pour vous offrir une meilleure expérience utilisateur. Pour se conformer à la nouvelle directive concernant la vie privée, nous devons vous demander votre consentement pour sauvegarder des cookies sur votre ordinateur. En savoir plus.
Chaudière bois Maga Via D6 puissance 28kW
Vous avez une question? .
MAGA, fabricant de chaudières à bois, propose le modèle Via D pour un remplacement rapide et facile d'une ancienne chaudière en fonte VIADRUS U26 par une nouvelle chaudière en acier.
Les chaudières MAGA série D sont historiquement les plus populaires en Slovaquie, notamment grâce à leur excellent rapport qualité-prix, chaudières bois à tirage naturel avec régulateur de tirage à chainette, disponibles en 17, 23 et 28kW
Les points forts de la chaudière Maga Via D puissance 28kW
- chaudière bois simple d'installation/ utilisation, sans électronique
- corps de chauffe acier 6mm
- grande porte de chargement
- Solution de remplacement d'une chaudière VIADRUS U26 rapide et économique
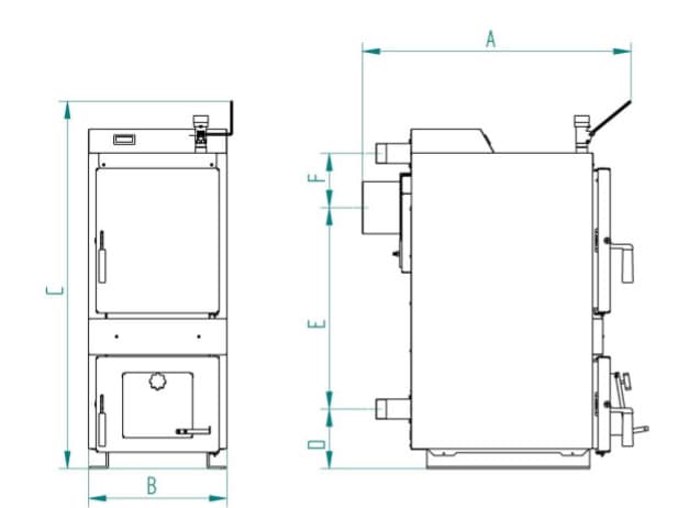
Principales Dimensions et Caractéristiques Techniques de la chaudière à tirage naturel Maga Via D
| VIA D4 | VIA D5 | VIA D6 | ||
| A | mm | 716 | 816 | 916 |
| B | mm | 420 | 420 | 420 |
| C | mm | 1117 | 1117 | 1117 |
| D | mm | 181 | 181 | 181 |
| E | mm | 612 | 612 | 612 |
| F | mm | 165 | 165 | 165 |
| Puissance nominale | kW | 17 | 23 | 28 |
| Rendement | % | 75 | 75 | 75 |
| norme ENE 303-5 | classe | 5 | 5 | 5 |
| classe énergétique | A+ | A+ | A+ | |
| Poids | kg | 164 | 190 | 216 |
| Volume d'eau | l | 38 | 45 | 52 |
| Volume de chargement | l | 47 | 60 | 74 |
| Longueur max bûche | cm | 30 | 40 | 50 |
| Diamètre sortie fumée | mm | 160 | 160 | 160 |
| Tirage | Pa | 25 | 25 | 25 |
| connexion | 2" | 2" | 2" | |
| Pression de service max | bar | 2 | 2 | 2 |
| Température max de fonctionnement | °C | 85 | 85 | 85 |
| Température mini de retour | °C | 55 | 55 | 55 |
| Délai livraison | 5-7 jours |
|---|---|
| Port 1€ | Oui |


